Kursy walut NBP: USD 3,98 | EUR 4,32 | CHF 4,53 |
Strona główna | Mapa serwisu | Zgłoś ofertę | Polityka plików cookies| Kontakt
Wyszukiwarka
Numer oferty
Miejscowość lub dzielnica
Ulica
Cena
Powierzchnia
Liczba pokoi
 
Oferty specjalne
zgloś ofertę
kontakt
Szczegóły oferty
Rodzaj oferty
mieszkanie ( sprzedaż )
Numer
12631885
Miasto
RUDA ŚLĄSKA
Ulica
Jarzębinowa
Cena
189 000 PLN kalkulator
Cena za mkw
5 727,27 PLN mkw
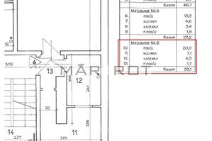
Powierzchnia
33.00 m2
Liczba pokoi
1
Piętro
1
Liczba pięter
4
Stan
do kapitalnego remontu
Rok budowy
1980
Piwnica
TAK
Komórka
TAK
Opis
Na sprzedaż mieszkanie 33 m2 w Rudzie Śląskiej przy ul. Jarzębinowej 1. Mieszkanie jest do remontu i własnej aranżacji. Obecnie jest to 1 pokój z widną kuchnią ale układ mieszkania daje dużą swobodę aranżacji i możliwość adaptacji mieszkania na 2 pokoje z aneksem kuchennym. Ciekawa oferta jako pierwsze mieszkanie lub pewna inwestycja pod wynajem.

Najważniejsze informacje

Powierzchnia 33 m2
Liczba pokoi 1/2
Piętro 1
Rok budowy 1976
Stan do remontu
Ogrzewanie miejskie
Dodatkowo piwnica
Stan prawny - bardzo na plus

Pełna własność
Czysta księga wieczysta
Brak użytkowania wieczystego gruntu (bez dodatkowych opłat rocznych)
Atuty nieruchomości

Ogrzewanie miejskie - wygoda i przewidywalność kosztów
Niski czynsz - dobre koszty utrzymania
Piwnica 4m2 - dodatkowa przestrzeń
Metraż i układ dają swobodę aranżacji
Mieszkanie dwustronne - Wschód / Zachód
Lokalizacja i okolica

Spokojna część Rudy Śląskiej z wygodną infrastrukturą w zasięgu krótkiego spaceru sklepy, punkty usługowe, szkoły/przedszkola, przychodnia, a także komunikacja miejska ułatwiająca dojazd.

Zapraszam do kontaktu i prezentacji. Mieszkanie można oglądać codziennie.



Powyższa oferta ma charakter informacyjny i nie stanowi oferty handlowej w rozumieniu art. 66 1 kodeksu cywilnego oraz innych właściwych przepisów prawnych.
Jesteś zainteresowany?

MAR-ROT NIERUCHOMOŚCI
Nowoursynowska 131
02-797 Warszawa
tel.: 608437512, 501706250
email: ag.nieruchomosci@vp.pl
Wyślij zapytanie
Imię i Nazwisko 
Telefon 
E-mail 
Treść zapytania 

Wyrażam zgodę na przetwarzanie moich danych osobowych przez firmę MAR-ROT NIERUCHOMOŚCI dla celów związanych z działalnością pośrednictwa w obrocie nieruchomościami, jednocześnie potwierdzam, iż zostałem poinformowany o tym, iż będę posiadać dostęp do treści swoich danych do ich edycji lub usunięcia.
Wyślij ofertę e-mailem
 

© 2026 MAR-ROT. Wszystkie prawa zastrzeżone.